En Venta
VENTA LOCALES Y OFICINAS SANTA FE Y ENTRE RIOS CON 552 M2 a reciclar
Código: 163822

Sta Fe 1290, S2000ATR Rosario, Santa Fe, Argentina, Rosario, Santa Fe, Argentina.

USD520.000

Local
Compartir esta Propiedad

Descripción de la Propiedad

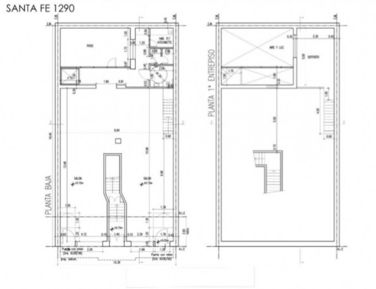
Oportunidad única en el centro de Rosario – Propiedad comercial en venta sobre calle Santa Fe entre Entre Ríos y Mitre
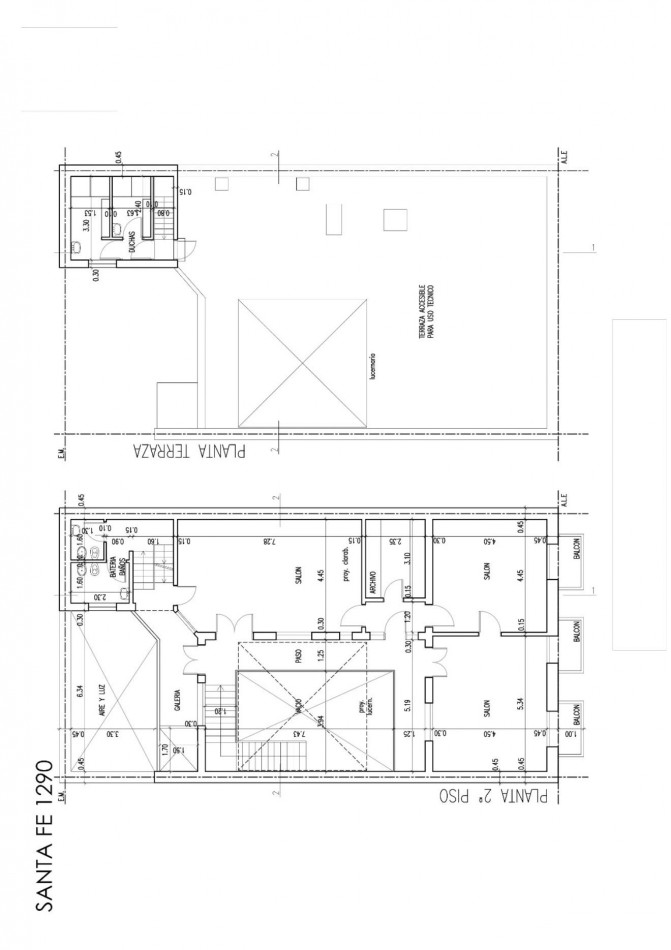
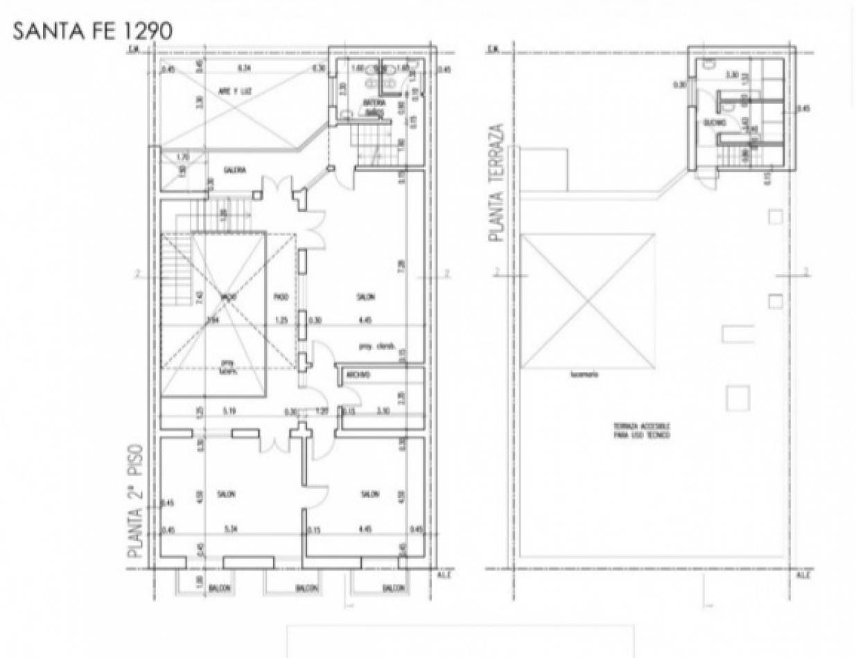
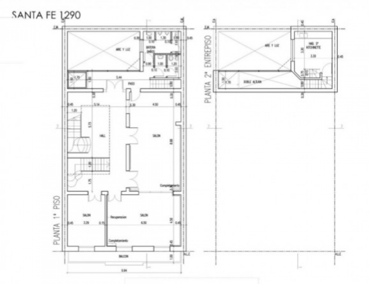
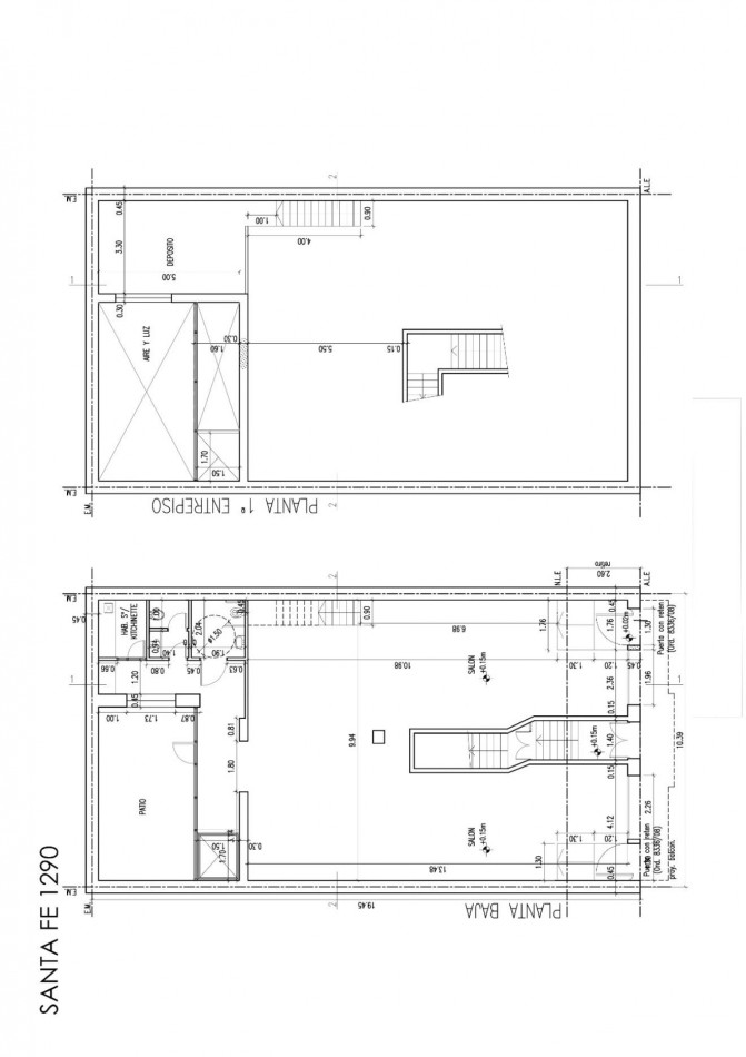
Se ofrece a la venta un amplio local comercial a reciclar, estratégicamente ubicado en el corazón de Rosario, sobre la transitada calle Santa Fe.
La propiedad cuenta con:
Planta baja de 200 m² con frente directo a la calle, ideal para local comercial o showroom.
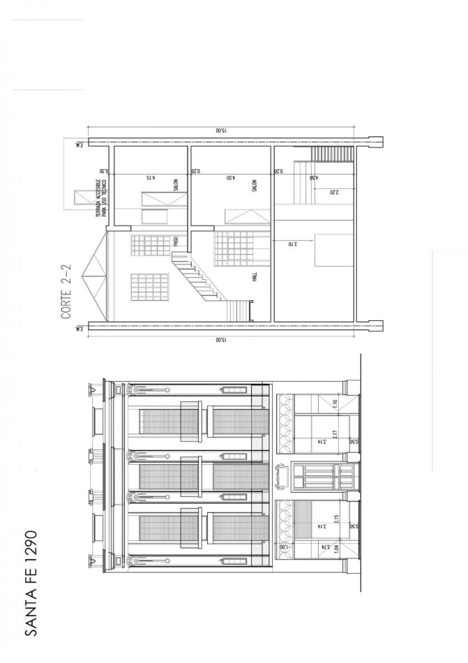
Escalera central de mármol, elegante y funcional, que conecta los tres niveles.
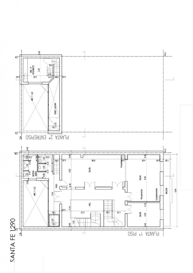
Primer piso de 180 m² y segundo piso de 172 m², ambos muy luminosos gracias a un lucernario central de 5 x 5 metros, que aporta luz natural a toda la planta.
Hueco estructural previsto para ascensor, lo que permite facilitar el acceso y sumar valor a futuras remodelaciones.
Con un total aproximado de 552 m² construidos, esta propiedad representa una excelente oportunidad para inversores, desarrolladores o empresas que busquen establecerse en una zona de alta visibilidad y circulación.
Propiedad a reciclar. Ideal para desarrollo comercial, institucional o de oficinas.
Consultanos para más información o coordinar una visita.

Mas detalles
  • Antigüedad 60 años
Ver video de la propiedad