En Venta
VENTA DEPARTAMENTO 3 DORMITORIOS, CALIDAD LATTUCA, PRIMERA LINEA DEL RIO 205 M2 EXCLUSIVOS MAS 36M2 DE COCHERA DOBLE Y BAULERA
Código: 195858

Av. Wheelwright 1823, S2000ACE Rosario, Santa Fe, Argentina, Rosario, Santa Fe, Argentina.

USD710.000

Departamento
Compartir esta Propiedad

Descripción de la Propiedad

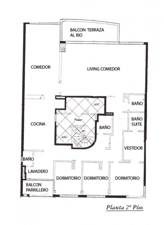
Calidad Aldo Lattuca. Piso exclusivo de categoría en primera línea al río – Wheelwright entre Dorrego e Italia
Imponente departamento de 205 m², con cochera doble y baulera (36 m² adicionales), ubicado en uno de los edificios más prestigiosos de la costa rosarina. Una propiedad única por su amplitud, luminosidad y vistas abiertas al parque.
La unidad cuenta con un gran living-comedor con salida a balcón terraza sobre Wheelwright, ideal para disfrutar de las visuales y la luz natural. Amplia cocina con mucho guardado, gran comedor diario, lavadero independiente y balcón con parrillero, perfecto para reuniones y momentos al aire libre.
Dispone de 3 dormitorios, incluido un dormitorio principal con vestidor y baño en suite, sumado a otros 3 baños, garantizando máxima comodidad y privacidad.
El edificio ofrece amenities de primer nivel: quincho, piscina.
Seguridad 24 horas, brindando tranquilidad y confort todo el año.
Una propiedad exclusiva, en una de las mejores ubicaciones de Rosario, primera línea del Rio, pensada para quienes buscan categoría, espacio y vistas privilegiadas, con acceso inmediato a parques, y zonas gastronómicas

Mas detalles
  • Aire acondicionado
  • Calefacción
  • Seguridad 24hs.
  • Servicios Compartidos
  • Agua Corriente
  • Cloacas
  • Electricidad
  • Red Gas Natural
  • Antigüedad 18 años
Ver video de la propiedad