En Venta
RETASADO LOCAL DE 430 m2 (815 US$/m2) A LA CALLE IDEAL INSTITUCIONES, COWORKING, ABOGADOS, CONSULTORIOS
Código: 38545

Moreno 1465, Rosario, Santa Fe, Argentina.

USD350.000

Local Comercial
Compartir esta Propiedad

Descripción de la Propiedad

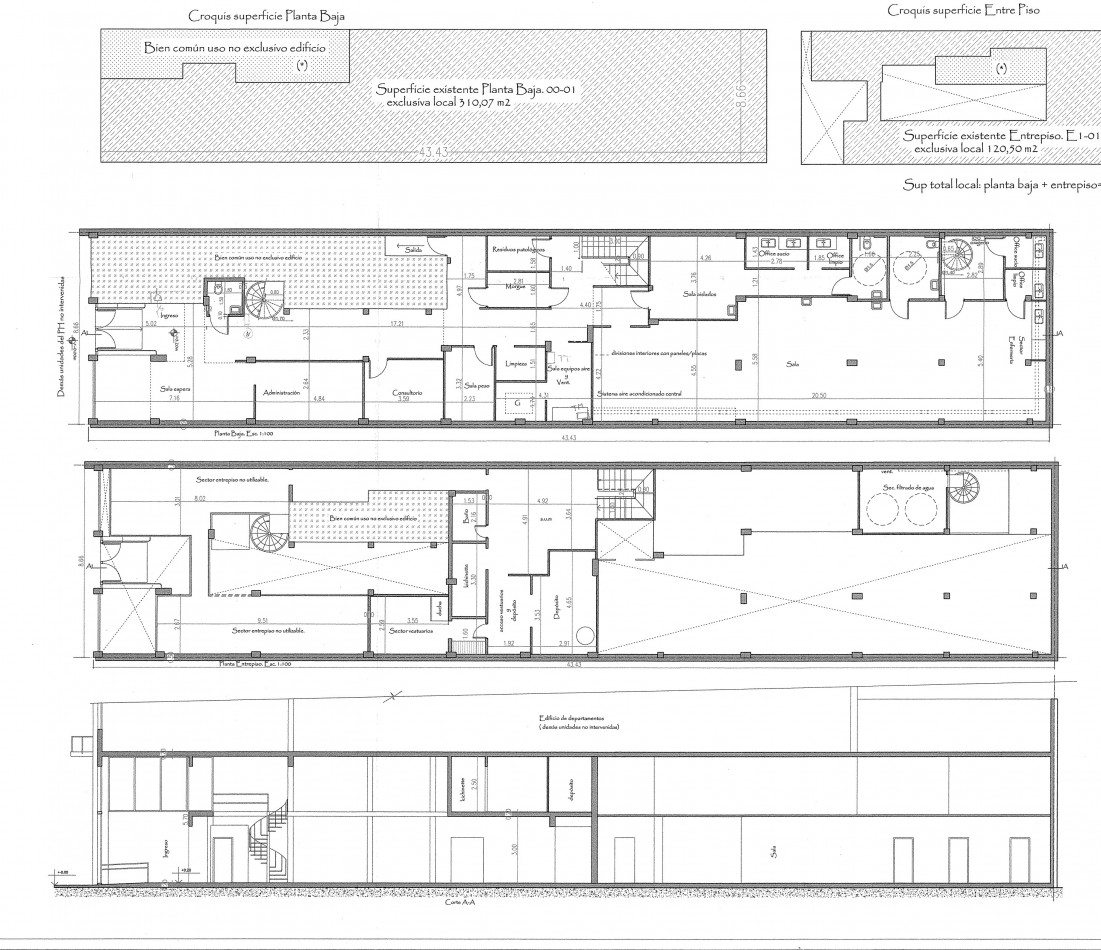
Importante local macrocentro en Moreno 1465 entre 9 de Julio y Zeballos. Supeficie 430m2. Frente vidriado de 5.50 mts por 5.70mts de altura con un fondo de 43 mts. Baños, kitchenette. Con más de 15 privados. Entrepiso. Impecable estado a metros de Bv. Oroño. Ideal Instituciones, facultades, obras sociales, oficinas, coworking.

Mas detalles
  • Antigüedad 20 años
Ver video de la propiedad